Aufgabenstellung, Ausgangslage
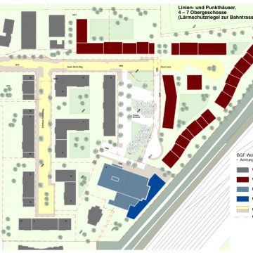
Im Zuge der Arrondierung 2 der Hauptgeschäftsflächen des BFW Hamburg sollen Grundstücksflächen veräußert werden. Hierzu sollen Testentwürfe zur späteren Nutzung als Wohnungsbaugrundstück erstellt werden.
Ort
Hamburg, Marie-Bautz-Weg
Auftraggeber
Perspektivkontor Hamburg GmbH
Leistungen
Entwicklung von Testentwürfen zur Grundstückausnutzung
Erfolge / Ziele
Erfolgreicher Verkauf der Flächen durch die Auftraggeberin
